新华社北京12月12日电(记者魏梦佳、杨淑君)红墙灰瓦的院落里,矗立着一棵600多年的参天古槐,耳畔鸟鸣啾啾。名为“神乐槐”的古树,见证了明清帝王祭天祈谷的虔诚,也在历史更迭中泣诉一段战争罪行。
天坛,是世界现存规模最大、保存最完整的古代皇家祭天建筑群,每年吸引无数中外游客前往参观。“神乐槐”便生长于天坛公园西南角的神乐署——明清时期培养祭祀乐舞生的场所。

图为天坛神乐署景区门口。新华社记者 魏梦佳 摄
光彩厚重的祭祀文化和礼乐文明令人心驰神往,却鲜有人知,80多年前,这里还曾藏着一座“细菌工厂”,对中国民众犯下滔天罪行。
宛平城炮火未歇,天坛已被虎狼觊觎。1937年8月,侵华日军占领神乐署,天坛从此遭受前所未有的劫难。
神乐署内北侧,一面斑驳灰墙上,嵌有两块汉白玉碑,碑上刻有“侵华日军细菌部队遗址”的字样。“‘九·一八’事变后,日本侵略军在中国设立了大规模的细菌部队,总人数达两万人……”碑文上写道。

图为天坛神乐署景区内“侵华日军细菌部队遗址”碑。新华社记者 魏梦佳 摄
1937年,侵华日军进入位于天坛神乐署的中央防疫处北平制造所“考察”,了解该处的设施设备、器具器械、实验室以及处理生物制剂的能力。1940年,经日本天皇敕令,北支那防疫给水部正式成立,代号甲第1855部队(简称1855部队),总部就设在天坛神乐署——这是日军在华北地区建立的细菌战部队。
披着野战供水和传染病预防的外衣,实则秘密培植细菌,对华开展细菌战。天坛公园红色讲解员梁梓昱介绍,1855部队研制和生产鼠疫、霍乱、伤寒、痢疾、黑热病、疟疾等致命细菌和原虫,后再将其研制成细菌武器,残害中国百姓。
“侵华日军731部队队长石井四郎,是细菌战的推行者、组织者和实施者。根据一些资料发现,1855部队很多骨干成员都有在731部队的服役经历。”梁梓昱说。

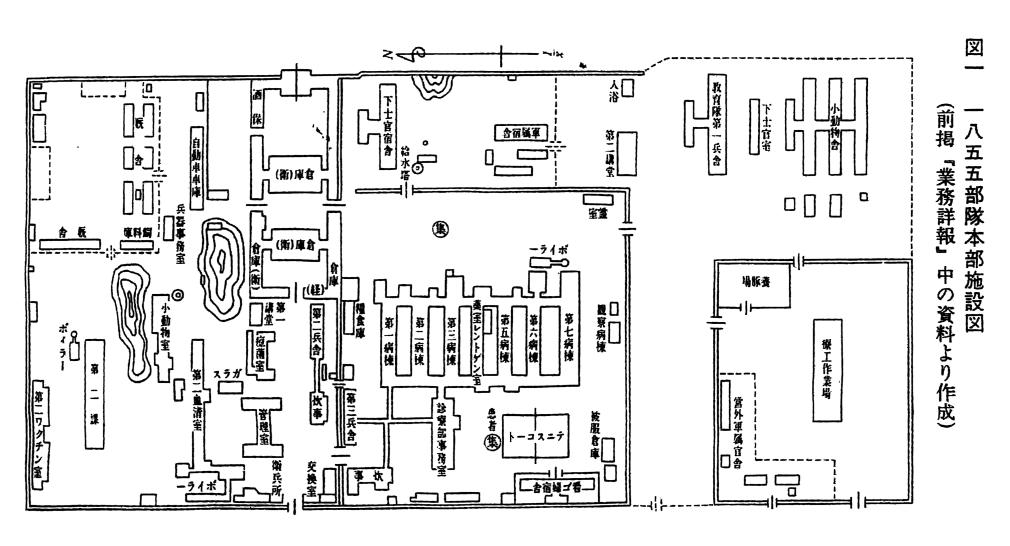
图为侵华日军细菌部队甲第1855部队本部设施图(资料照片)。新华社发
缘何选择天坛神乐署作为“细菌工厂”?
梁梓昱解释,这里原为中央防疫处,日军在这不仅可使用现成的设施设备、器材和器具,且位置隐蔽,便于秘密开展细菌实验等活动。
北京市档案学会副秘书长张斌介绍,1855部队在北京设有本部和下属三课,第一课(病理实验)、第二课(制造菌苗)、第三课(细菌武器研究所),而其中的本部及第二课就在天坛神乐署。神乐署北侧被占领后直接用于大量生产各种细菌战剂,“他们还挖了地下冷库,专门用于储存菌苗”。
北京市档案馆馆藏的《北京地区防疫委员会防疫课霍乱预防工作报告书(1943年)》中,一份《(民国)三十二年六至十月患者路倒死亡者消毒工作统计表》显示:当年6月和7月,北京只有3例霍乱感染病例,无死亡报告;8月,霍乱病例集中暴发;截至10月底,发现霍乱“患者264例,死亡1780例,路倒92例”。
日本细菌战研究专家、滋贺医科大学名誉教授西山胜夫近日向新华社记者展示了一份他新发现的《北支那防疫给水部甲第一八五五部队 留守名簿》的文档扫描件。这是首页《北支那防疫给水部支部出张所一览表》。新华社发
“日军为研制杀人细菌武器,竟用中国人进行活体实验,大量中国被俘士兵和平民被当做实验对象惨遭杀害。”神乐署碑文上写道。“为掩盖罪行,他们还有一套特殊称谓,如把老鼠称为‘饼’,把跳蚤称为‘粟’,把活体实验的人称为‘猿’。” 梁梓昱说。
1945年8月15日,日本战败投降。梁梓昱说,消息一传来,1855部队就紧急销毁细菌部队的资料,焚烧罪证,“破坏工作持续了整整三天三夜,仅实验用的跳蚤,就拉走了一万多桶”。战争刚结束,日军就遣散了这支部队,并妄图把它从历史中抹去。
罪证可以焚烧,历史不会湮灭。
新中国成立后,天坛神乐署逐渐得到修复。2012年,被列入第一批北京市爱国主义教育基地。
尽管1855部队作恶的历史遗迹难寻,梁梓昱和同事们多年来仍在不断整理有关那段历史的资料,向参观者讲述日军在此犯下的滔天罪行。截至目前,相关讲解已达万余场。
“侵华日军的731部队大家都熟悉,1855部队你们知道吗?”讲解前,梁梓昱总会这样问观众。
“大家普遍不知道1855部队,听了讲解后都很震惊。”梁梓昱说。

图为天坛神乐署景区内的“神乐槐”。新华社记者 魏梦佳 摄
在曾被侵华日军用于办公场所的神乐署院落,如今,“神乐槐”依然挺拔矗立。
“侵华日军细菌战给中国民众造成了无法磨灭的深重灾难,战争罪行无法抹去,惨痛历史不容忘却,我们更应珍视来之不易的和平。”张斌说。









